Épületek (lakások, társasházak, családi lakóházak, üzletek, irodák, rendelők, intézmények) energetikai tanúsítványainak elkészítését végezzük. Az épületek energetikai tanúsítása szükséges az ingatlanok adás-vételéhez, bérbeadásához, energetikai pályázatokhoz. A tanúsítványok készítését önállóan vagy tervezési, pályázat készítési tevékenységgel együtt is végezzük. Tevékenységünket Nógrád (Bátonyterenye, Pásztó, Salgótarján, Szécsény térsége), Heves (Eger, Gyöngyös, Hatvan, Pétervására térsége) megyékben, Budapest XI. és XXII. kerület (Alberfalva, Budafok-Tétény) és a Balaton déli partján (Balatonvilágos, Siófok, Zamárdi térségében) vállaljuk.
tervadminhost bejegyzései
Referenciáink
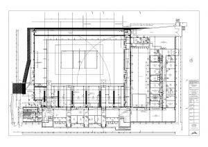
Salgótarján Városi Sportcsarnok, Kassai sor 54.
Kapcsolat
TARJÁNTERV
Mérnöki Iroda Kft.
3100 Salgótarján, Erzsébet tér 6.
tarjantervkft kukac gmail.com
Séber Ferenc
ügyvezető, építész tervező
06-30-967 2879
Vass Attila ügyvezető
építész- és tartószerkezet tervező, energetikai tanúsító
06-30-282 9273
Munkatársaink
A TARJÁNTERV Mérnöki Iroda Kft.-t 2006-ban alakítottuk, három tervező, akik hosszú évek óta együtt dolgoztunk.
Tevékenységünk lakó- és középületek, kereskedelmi- és ipari létesítmények építésére és átalakítására,
felújítására vonatkozó tervek, valamint településrendezési tervek készítésére terjed ki.
A tervezők és jelentősebb műveik:
Karácsony Ágnes településtervező:
- Rétság város településrendezési terve
- Salgótarján városközpont, Beszterce telep, Zagyvapálfalva településrendezési terve
- Alsópetény község településrendezési terve
- Bánk község településrendezési terve
- Alsótold, Bokor, Cserhátszentiván, Felsőtold, Garáb, Kutasó községek településrendezési terve
- Ipolytarnóc község településrendezési terve
- Szendehely község településrendezési terve
- Nógrád- és Heves megyei települések rendezési terveinek módosításai
Séber Ferenc építész:
- Szent Lázár Megyei Kórház „E” jelű épülete, Salgótarján, Füleki út 54-56.
- Aba Sámuel Általános Iskola bővítése, tornaterem építés, Kazár, Szabadság út 3.
- Óvoda bővítés, Kálló, Arany J. út 3.
- Üdülőfalu építése, Legénd, Káldy-tanya
- 50 férőhelyes idősek otthona, Pásztó, Sport út 4-6.
- AFT gyártócsarnok, Rétság, Ipari Park
- Ten Cate Enbi gyártócsarnok, Rétság, Pusztaszántói út 4.
- CTK gyártócsarnok, Karancsalja, Határ út 4-6.
- Peugeot autószalon és szerviz, Salgótarján, Hősök útja 2.
- József Attila Művelődési Központ felújítás, Salgótarján, Fő tér
- Óvoda felújítás, Somoskőújfalu, Somosi út 102.
Vas Attila építész:
- Palóc Nagykereskedelmi Kft. logisztikai központ, Salgótarján, Ipari Park
- MITSUBA autóalkatrész gyár, Salgótarján, Ipari Park
- HelioGrid napelemgyár, Rétság, Pusztaszántói út 10.
- Salgó Vagyon Kft. inkubátorház, Salgótarján, Ipari Park
- Szent Lázár Megyei Kórház „Gy” jelű épület, Salgótarján, Füleki út 54-56.
- Salgótarján, Városi Sportcsarnok átalakítás, bővítés, Salgótarján, Kassai sor 54.
- Római katolikus templom felújítás, Szilaspogony
- Római katolikus templom felújítás – Litke
- CBA áruház – Mátraterenye (Homokterenye)
- Ravatalozó – Drégelypalánk
- Ravatalozó – Bárna
- Ravatalozó – Somoskőújfalu











